bureaux
avec
terrasses
L’immeuble de bureaux avec terrasses de Nice Méridia a été pensé comme un nouveau standard de bureaux bioclimatiques. Il s’inscrit dans une démarche environnementale forte.
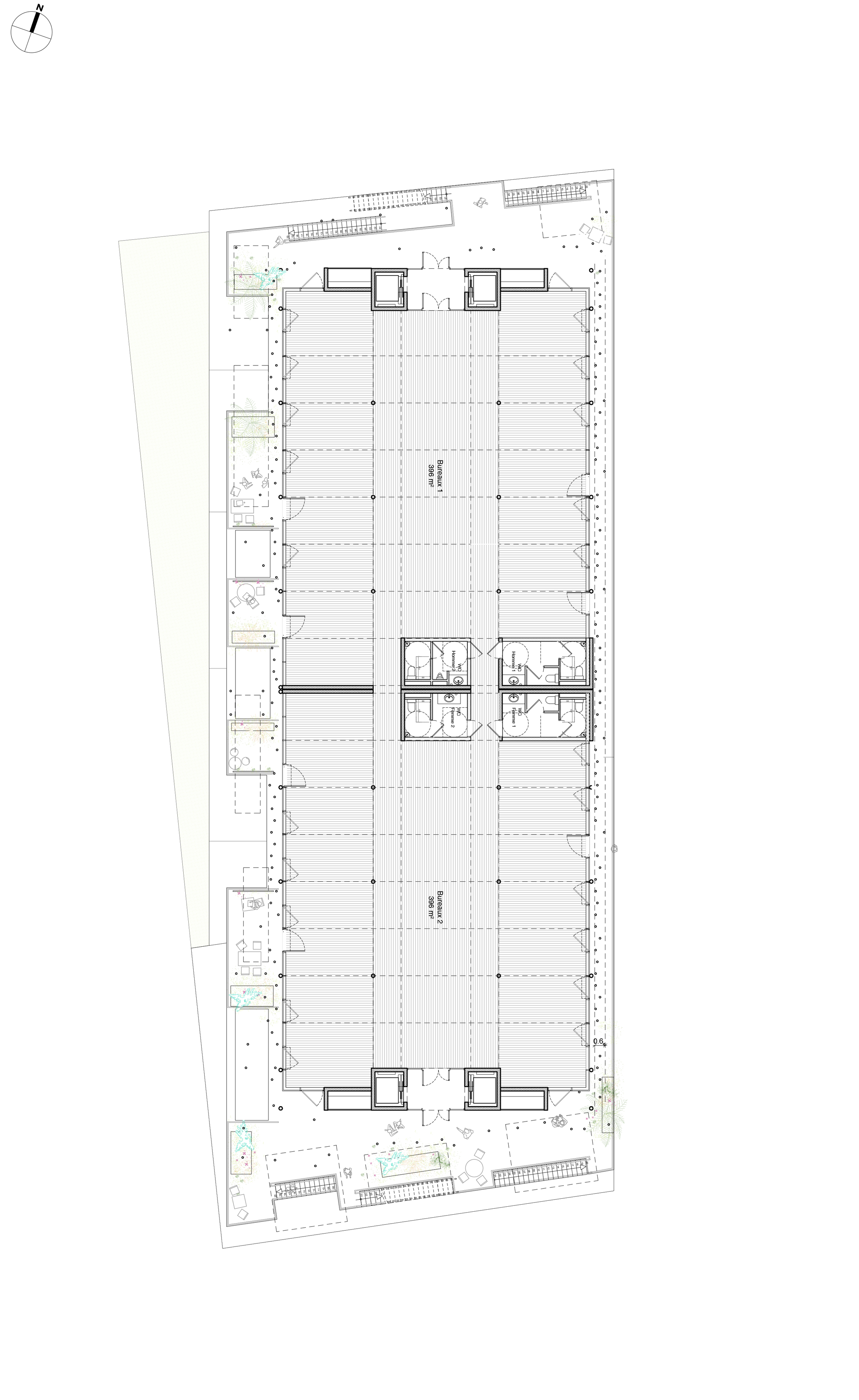
L’organisation traditionnelle d’un immeuble de bureaux est ici inversée. Les circulations habituellement disposées au coeur du bâtiment viennent animer les façades avec une ouverture totale sur l’espace public. Le bâtiment s’ouvre ainsi totalement sur son environnement.
Le bâtiment s’ouvre
totalement sur
son environnement.
Le projet architectural
est fondé sur la flexibilité
des lieux de travail.
un nouveau standard
de bureaux bioclimatiques
6 400 m² de bureaux
600 m² de commerces
Maître d'ouvrage Pitch Promotion
Architecte laisné roussel
Chef de projet Julie Siol
Equipe Marie-Aglaé Boukouvalas, Stella Buisan, Leticia Martinez Velasco
Paysagiste Tangram Paysage
BET TCE Oteis
Ing.Env. Le Sommer Environnement
Photographe Cyrille Weiner
Surface 6 346 m² Sdp de bureaux et 616 m² Sdp de commerces
Budget 11 M € HT
Démarche environnementale Certification BREEAM Very Good, Smart Grid ready et CRQE
Statut Livré 2019


